公司简介 公司新闻 综合资讯 产品展示 产品目录 客户反馈 联系我们 电子邮局
主要产品为静态混合器、动态混合设备、传热反应设备、过滤设备、消声设备、阻火设备等

调和器
管式反应器
切水器
管道过滤器
混合器
自清洗过滤器
空气过滤器
灭菌过滤器
滤件系列
精细过滤器
粉体输送设备
粉体混合设备
液体搅拌设备
消声器
特种小型设备
排水器
高效换热器
纸浆漂白专用设备
除污器(滤水器)
喷射器
纤维除雾器

 
          QD/HT型蒸汽减温器(急冷器)     
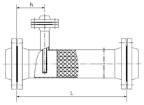
 产品概述
 蒸汽减温器是近代节能工程采用的一种设备,该设备由减温水雾化装置与组合式汽化单元两大部分组成,雾化喷嘴对减温水进行压力雾化,分散于高温蒸汽汽流中,组合式汽化单元进一步对雾化减温水强制性旋转、剪切破碎,并在汽化单元内件表面被吸热汽化,显著强化了汽化过程,达到高温蒸汽的减温。该设备具有结构简单,雾化减温效率高、能耗小、投资少、操作弹性大、安装维修简单等优点。
产 品 型 号
入口蒸
汽量t/h
蒸汽入口、
出口管径
入口蒸
汽温度℃
出口蒸
汽温度℃
减 温
水管径
设备总长L
水管与
入口距离h
QHT0.6(1.0)-1.5/100
<1.5
100
250(425)
153(250)
32(25)
1000
150
QHT0.6(1.0)-3.0/100
1.5~3.0
100
250(425)
153(250)
32(25)
1000
150
QHT0.6(1.0)-5.0/150
3.0~5.0
150
250(425)
153(250)
32(25)
1100
150
QHT0.6(1.0)-7.0/200
5.0~7.0
200
250(425)
153(250)
32(25)
1200
170
QHT0.6(1.0)-10/200
7.0~10
200
250(425)
153(250)
32(25)
1200
170
QHT0.6(1.0)-15/200
10~15
200
250(425)
153(250)
40(32)
1200
170
QHT0.6(1.0)-20/250
15~20
250
250(425)
153(250)
40(32)
1300
170
QHT0.6(1.0)-30/300
20~30
300
250(425)
153(250)
50(32)
1400
200
QHT0.6(1.0)-40/400
30~40
400
250(425)
153(250)
50(32)
1600
200
   注:减温水压力~2.0MPa,流量(7~15)%汽量,括号内尺寸为DSL-1.0系列蒸汽减温器数据
 
南通天蓝石化设备有限公司 地址:启东市台角工业园区跃龙路18号 邮编:226200 http://www.ntjlyj.com E-mail:13862980289@126.com
电话:0513-83750261 手机:13862980289 调和器旋转喷射器 | 调和喷头